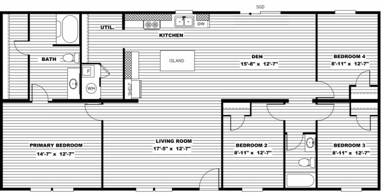
$219,000
1653
©2026 All Rights Reserved. Tommy Deals Factory Direct
Website built with by Wilson Print Marketing